COMO LAKE VILLA

Como, IT

FLOOR PLAN

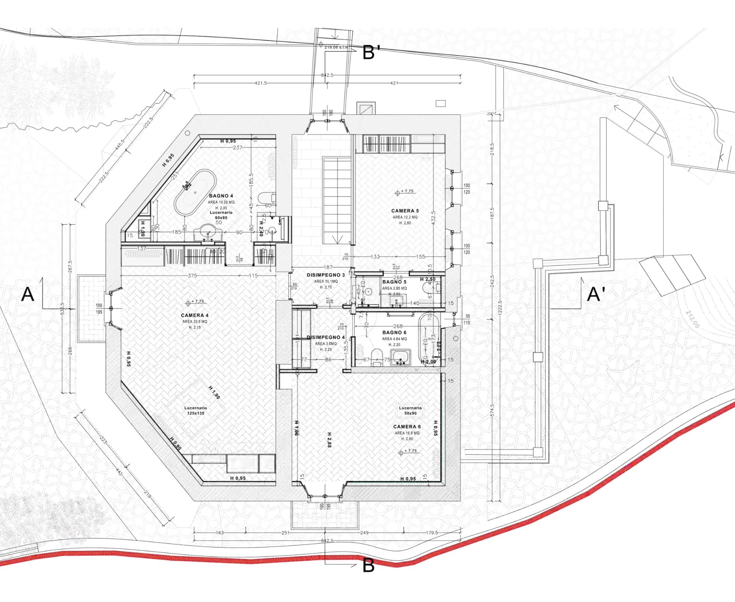
Second Floor

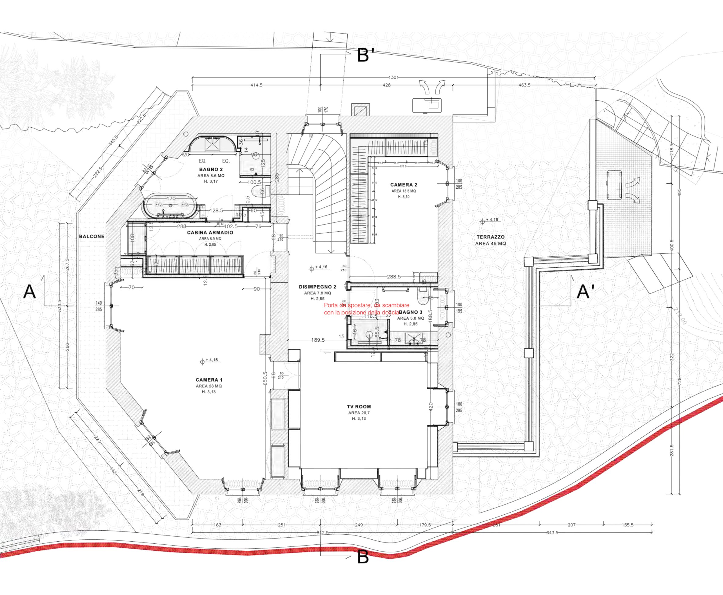
Third Floor

Private collector project.

The renovation of this 19th-century villa was approached with meticulous care, ensuring that the essence and historic character of the space were preserved while seamlessly integrating a curated selection of collectible design pieces.

Natural luxury materials were thoughtfully chosen for the finishes, creating a harmonious connection between the interiors and the villa’s stunning outdoor surroundings, including the nearby lake and locally sourced materials. To enhance the space, rich fabrics and refined details were added, blending timeless elegance with modern sophistication. The result is a cohesive and luxurious retreat that honors its heritage while embracing contemporary design.

Project Date: 2023 Location: Como Lake, IT

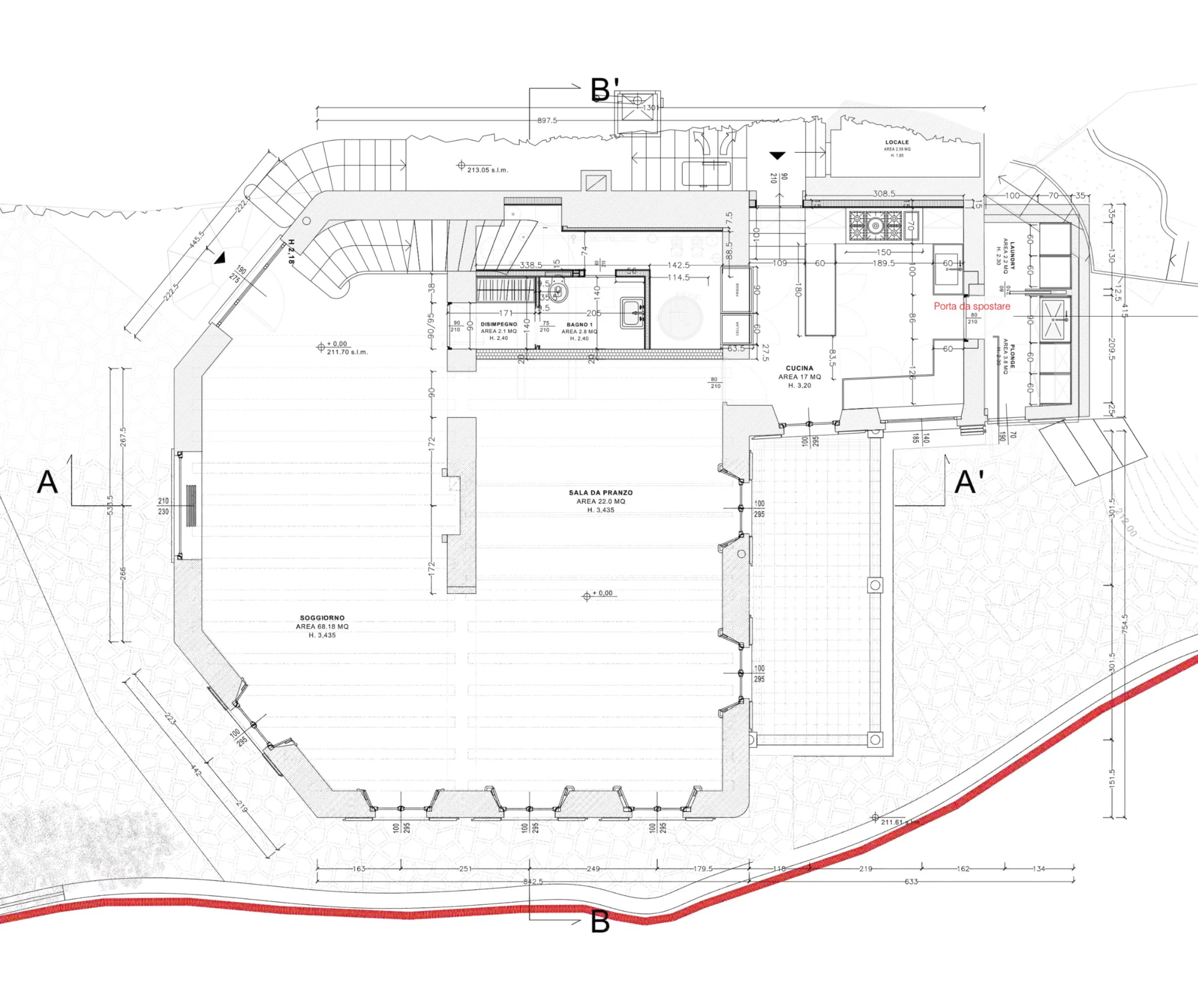
First Floor

Mayfair Apartment

Milan Apartment

London Showroom

Bologna Apartment

Moltrasio Villa